REZERVACE
18 000 Kč + služeby a el. energie (bez provize RK)
K pronájmu moderní a nadčasový byt 3+KK po celkové zdařilé rekonstrukci. Prostorný byt v osobním vlastnictví je připravený k pronájmu na ul. Třída T. Bati ve Zlíně.
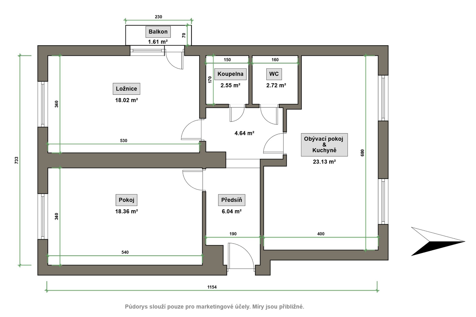
Bytová jednotka (cca76m²) s balkonem (1,5m²) a sklepem je umístěna v 2.NP cihlového domu bez výtahu.
Byt je svojí rozlohou velmi prostorný. V bytě jsou 2 veliké neprůchozí pokoje, krásná kuchyně (na míru vybavena spotřebiči) s obývacím pokojem, koupelna s vanou, samostatné WC s prostorem na pračku. Nedílnou součástí je veliká předsíň s vestavěnými skříněmi a úložnými prostory.
Majitelé byt opravili a navrhli tak, aby vyhovoval a našli zde nový domov majitelé, kteří již nemusí nic řešit.
Nájemné ve výši 18 000,-Kč je uvedeno bez služeb a el. energie (celkem cca 6 500,-Kč)
Při předání bytu se skládá 2x vratná kauce ve výši 36 000,-Kč a první nájemné.
Centrum města na dosah a dětské hřiště za domem je velkou výhodou tohoto pěkného bytu. K nemovitosti náleží sklepní kóje.
Parkování je možné za domem, nebo v okolních přilehlých parkovacích místech ve městě.
Hezké bydlení podtrhuje umístění nedaleko centra v blízkosti je i zastávka MHD a veškerá občanská vybavenost. Předání nemovitosti je možné po domluvě s majiteli (leden 2026).


