REZERVACE
4 900 000 Kč (bez provize RK)
Ke koupi rodinný dům 4+2 s hospodářskou budovou a s pozemkem v obci Štítná nad Vláří – Popov.
Pokud hledáte bydlení v obci a chcete mít dobrou dostupnost do Vsetína, nebo Zlína? Chcete velikou zahradu, pozemek a samostatně stojící rodinný dům? Pak je tato nemovitost přímo pro Vás.
Dům lze využít jak k bydlení, tak podnikání, nebo se realizovat na veliké zahradě.
CP pozemku činí cca 1899 m².
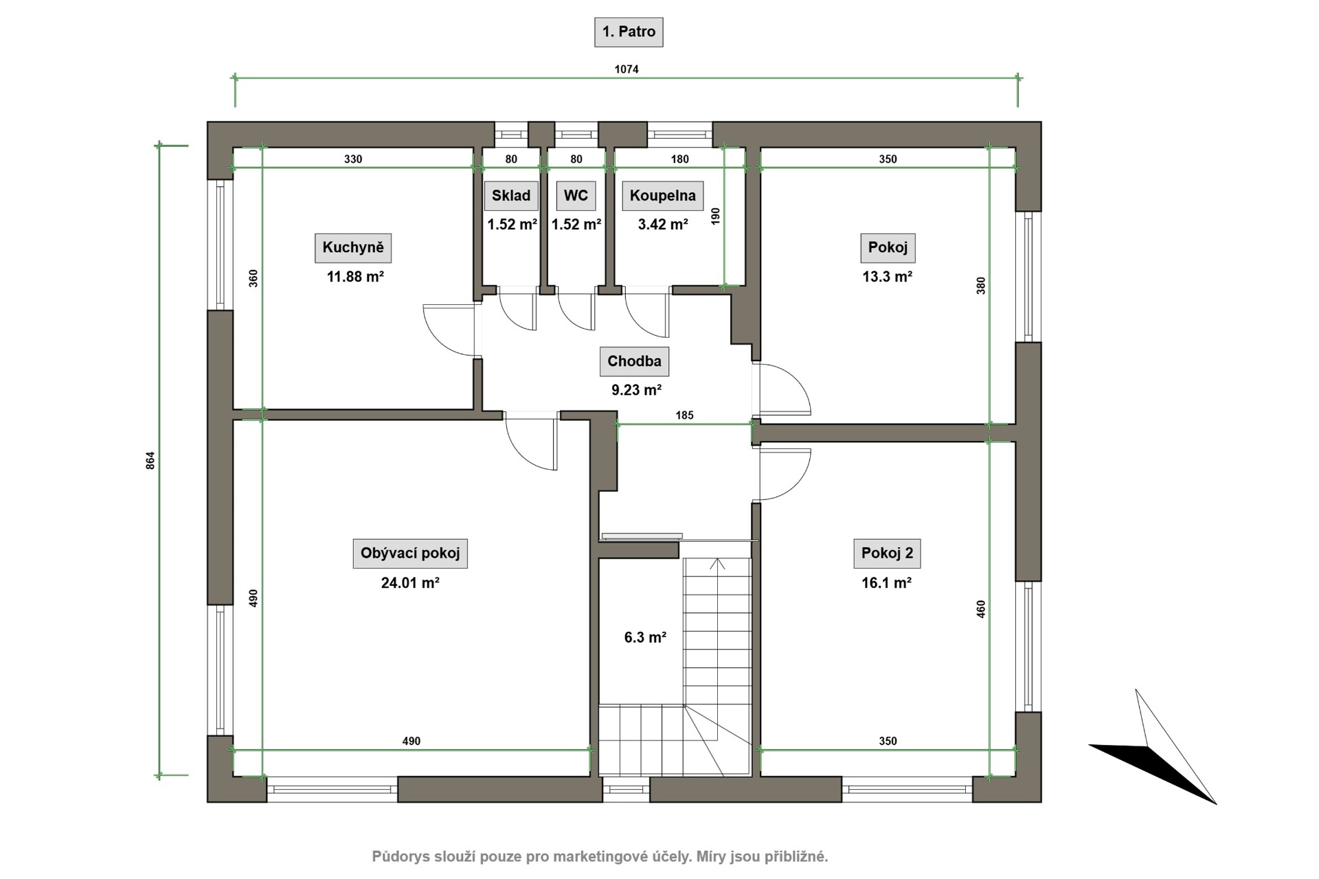
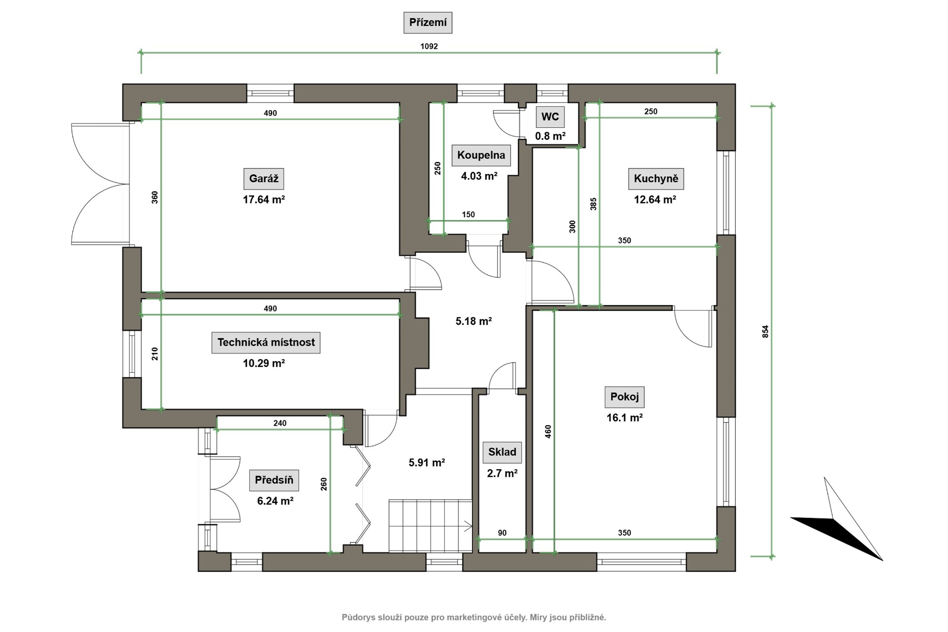
Jedná se o větší rodinný dům (cca 157 m²), který je není podsklepený s obytnou částí jak v přízemí, tak v prvním patře.
Dům nabízí:
Přízemí o CP cca79m² Vám nabízí: jeden neprůchozí pokoj, kuchyni s jídelnou, koupelnu, samostatné WC, sklad.Nedílnou součástí přízemí je veliká garáž, technická místnost a předsíň.
Do patra vede pohodlné, prostorné schodiště.
1.NP. o CP cca78m² Vám nabízí: tři neprůchozí pokoje, kuchyni s jídelnou, koupelnu, samostatné WC a spíš.
Dále zde naleznete půdní prostor, který slouží jen pro uskladnění věcí.
Dům je napojen na obecní vodovod, kanalizaci, elektrickou energii a plyn + kotel na tuhá paliva.
Tento rodinný dům prošel částečnou rekonstrukcí: nová fasáda a zateplení, střešní krytina, plastové okna. Příjezdová cesta vede pohodlně až k domu.
K domu je přilehlá hospodářská, veliká budova a na zahradě zahradní domek k posezení.
Krásná zahrada (cca 1050 m²) poslouží k zahradničení, odpočinku a relaxaci. Jsou zde ovocné stromy a keře.
Obec Štítná nad Vláří-Popov vznikla spojením dvou vesnic a leží v údolí Bílých Karpat na hlavní komunikaci mezi Brumovem-Bylnicí a Slavičínem, asi 3 km západně od Bylnice. Část katastru tvoří hranici se Slovenskou republikou. Obcí protéká řeka Vlára.
Veškerou občanskou vybavenost najdete v sousední Štítné nad Vláří.



