REZERVACE
2 900 000 Kč (bez provize RK)
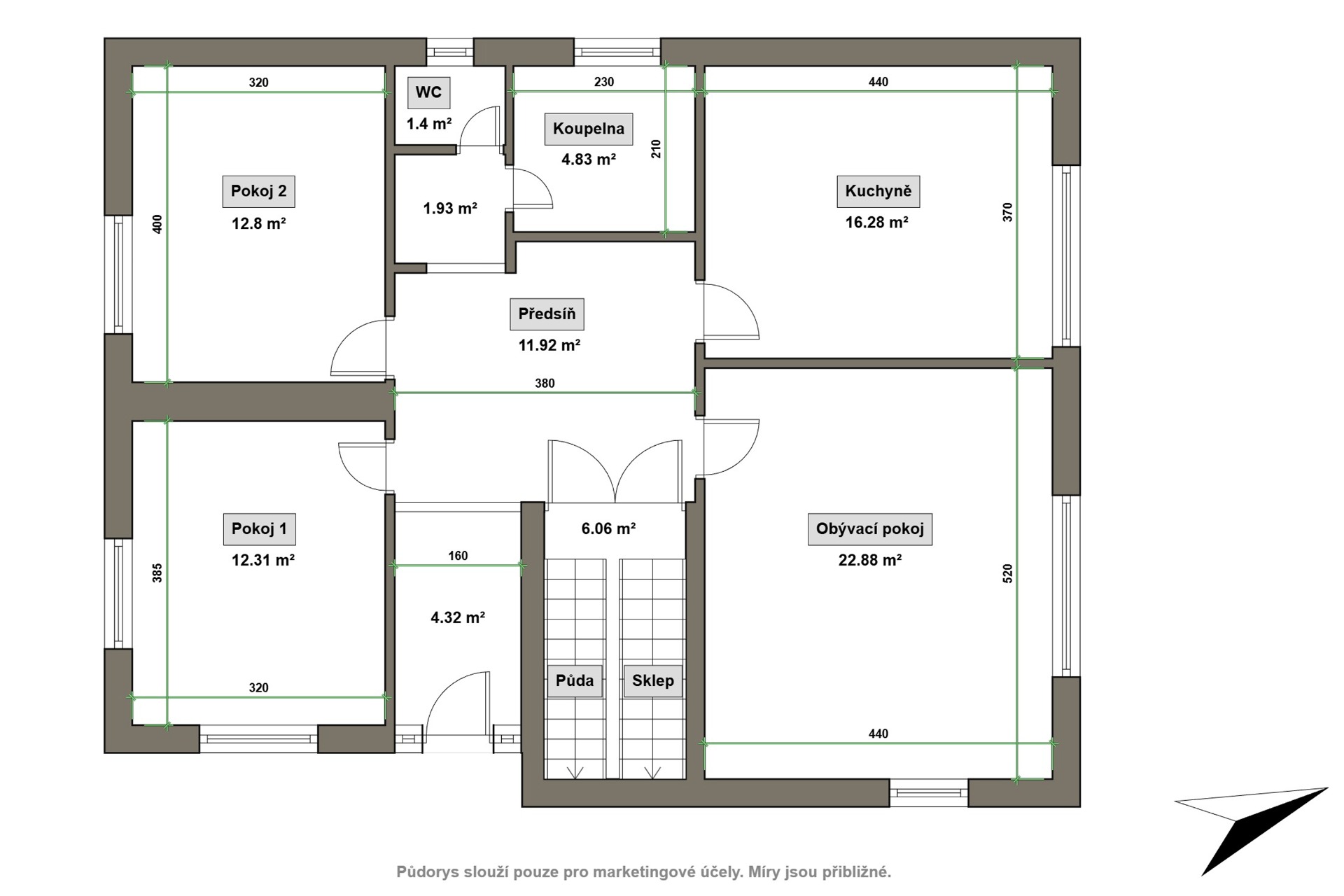
Rodinný dům v obci Poteč s číslem popisným, situovaný na pozemku o celkové výměře 1 731 m². Jedná se o zděný rodinný dům s užitnou plochou cca 238 m² a navazující zahradou o výměře 1 239 m².
Dům má dispozici 4+1 a zahrnuje kuchyni, koupelnu, samostatné WC a zádveří. Objekt je z části podsklepený. V podkroví se nachází půdní prostor s možností vybudování další bytové jednotky či rozšíření obytné plochy.
Na nemovitosti je započatá rekonstrukce – osazena jsou nová dřevěná okna a střešní krytinu tvoří šindel. Součástí domu je rovněž přístavba, která není dosud zkolaudována. Dům je nutné dále dokončit a opravit dle vlastních představ nového majitele, což nabízí prostor pro individuální úpravy a přizpůsobení bydlení.
Inženýrské sítě: elektřina, vlastní studna na pozemku, septik, v hranici pozemku obecní vodovod a kanalizace.
Na nemovitosti vázne věcné břemeno užívání, zapsané v katastru nemovitostí. Tato skutečnost bude transparentně vysvětlena zájemcům.
Příjezdová cesta k nemovitosti vede po asfaltové komunikaci.
Krásný, slunný pozemek na rovině je velikým bonusem.
V okolí domu je veškerá občanská vybavenost. Nemovitost se nachází v klidné lokalitě s dostatkem soukromí a zeleně a představuje zajímavou příležitost pro ty, kteří hledají dům k dokončení a rekonstrukci podle vlastních potřeb.


