2 100 000 Kč (bez provize RK)
Prodej chaty k trvalému bydlení i rekreaci – Jasenná na Moravě.
Hledáte klidné místo v přírodě, kde si odpočinete od ruchu města, budete moci grilovat, zahradničit nebo jen relaxovat na slunné terase s výhledem do krajiny? Nabízíme k prodeji útulnou, z části zděnou chatu v oblíbené chatové oblasti obce Jasenná na Moravě.
Chata se nachází v prosluněné stráni na vlastním pozemku o celkové výměře 400 m². Zastavěná plocha činí přibližně 50 m². Díky své dispozici je vhodná nejen k rekreaci, ale i k trvalému bydlení.
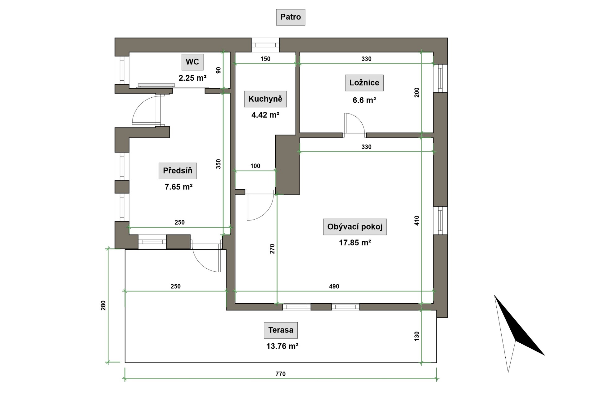
Dispozice nemovitosti:
V přízemí se nachází skladovací prostor, koupelna, samostatné WC a chodba. V patře je situován obývací pokoj, ložnice, předsíň, druhé WC a menší kuchyně. Dominantou patra je krásná terasa s příjemným výhledem na okolní přírodu.
Součástí pozemku je také ohniště a praktická dřevárka.
Vytápění je zajištěno krbem, který nabízí tradiční a efektivní způsob vytápění s příjemnou atmosférou. Ohřev vody zajišťuje elektrický bojler. Chata je napojena na inženýrské sítě, kanalizace je řešena trativodem.
Přístup k nemovitosti je zajištěn kombinací asfaltové a částečně nezpevněné komunikace na základě věcného břemene, což zajišťuje právně ošetřený příjezd až k pozemku.
Tato nemovitost je ideální volbou pro ty, kteří hledají kombinaci klidu, přírody a dostupnosti zázemí.
Pro více informací či sjednání prohlídky Vás ráda kontaktuje makléřka Martina.



