5 500 000 Kč (bez provize RK)
Ráda bych Vás provedla a představila Vám ke koupi moderní a slunný byt 3+1 po rekonstrukci s jednou zasklenou lodžií ve vyhledávané, a přitom klidné lokalitě Otrokovic – Trávníky, ul. SNP.
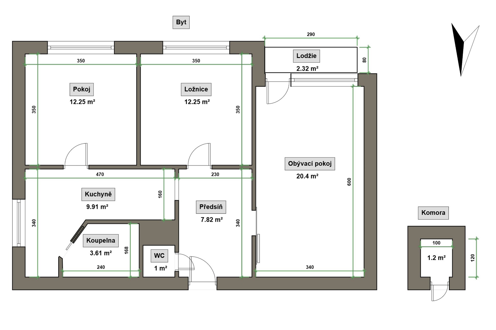
Bytová jednotka je umístěna v 12. NP panelového domu se dvěma výtahy. K bytu náleží komora na patře a sklepní kóje v suterénu.
Tato nemovitost je svou rozlohou velmi prostorná.
Jistě Vás bude zajímat a oceníte:
• byt je po rekonstrukci s klimatizací
• celková plocha bytu cca 69 m² + ( plocha lodžie 2,5m², plocha komory 1.2m² a klep 2m²)
• stínění v interiéru a venkovní elektrické rolety
• na míru zhotovená kuchyň včetně spotřebičů
• tři samostatné, neprůchozí pokoje s novými podlahami
• zděná koupelna s vanou a oddělené WC
• komora na chodbě
• v předsíni vestavěná skříň a úložné prostory
• sklepní kóje
Byt nabízí krásný výhled na okolí a zeleň, působí vzdušně a propojuje interiér s okolním prostředím.
Byt je ideální pro všechny věkové kategorie – rodiny s dětmi i seniory, kteří hledají moderní bydlení s minimálními nároky na údržbu a chtějí si užívat komfort bez nutnosti dalších úprav.
Energetická náročnost budovy (třída C) zaručuje nízké provozní náklady, což přispívá k pohodlnému a úspornému bydlení.
V blízkosti domu se nachází parky, cyklostezka, dětská hřiště, škola, školka, pošta, obchody, kavárna, zdravotnické středisko a autobusová zastávka MHD, odkud je snadné spojení do centra Otrokovic.
Doporučuji Vám toto příjemné a komfortní bydlení – určitě nebudete litovat.
Prohlídky a návštěva bytu jsou možné po dohodě s makléřkou Martinou.


